提示:↑↑↑石材研习社,您身边的石材课!

内容提要
研究对象
不同风格小区入口做法及其适用范围设计原则(西班牙风格、英式风格、法式风格、美式风格、新古典主义风格、Art-Deco风格、新中式风格、现代典雅风格)
研究目的及意义
为集团开发项目的小区入口提供标准化模块
为集团设计院主入口设计提供基本原则和设计的基本方法
最大限度提升住宅小区的产品附加值,提升万科品牌形象
建筑风格分析
西班牙风格特点:
西班牙风格的最大特点是在建筑中融入了阳光和活力,采取更为质朴温暖的色彩,使建筑外立面色彩明快,既醒目又不过分张扬,且采用柔和的特殊涂料,不产生反射光,不会晃眼,给人以踏实的感觉。
西班牙风格主要特征:外表有鲜艳明亮的色彩,或黄或白;有圆拱形的门廊或窗户;屋顶坡度较缓;屋面上有红色陶瓦筒覆盖,屋顶与外墙的结合处还有波纹形的装饰,使建筑更显灵动;阳台宽敞,用花铁栏杆围护;门或窗间有特制的西班牙螺旋形柱子;花园面积也比较大。
英式风格特点:
英式风格建筑具有简洁的建筑线条,凝重的建筑色彩和独特的风格,坡屋顶、老虎窗、女儿墙、阳光室等建筑语言和符号的运用,充分诠释着英式建筑所特有的庄重、古朴。建材选用手工打制的红砖、碳烤原木木筋、铁艺栏杆、手工窗饰拼花图案,渗透着自然的气息。
英式风格主要特征:山墙和外墙上都有暴露在外的深色木构架;都有高出屋面的砖头烟囱,上面还有小圆筒作烟囱冠;屋顶用红瓦铺盖,坡度较陡;外墙面的色彩较淡
法式风格特点:
法式风格在建筑整体方面有着严格的把握,多运用法式廊柱、雕花、线条等制作工艺,精细考究。在布局上突出轴线的对称,恢弘的气势、舒适豪华的居住空间。法式建筑十分推崇优雅、浪漫和高贵感。
法式风格的主要特征:具有孟莎式的双坡屋顶,屋面坡度有变化,也有采用四坡顶的法式建筑;在陡峭的坡度上开设装有檐口的窗户,即“老虎窗”;法国式的建筑注重装饰,具有对称庄重的形式;外立面大多用石材贴面,或用仿石材。
美式风格特点:
美式建筑风格实际上是一种混合风格,不象欧洲的建筑风格是一步步逐渐发展演变而来的,它在同一时期接受了许多种成熟的建筑风格,相互之间又有融合和影响。具有注重建筑细节、有古典情怀、外观简洁大方,融合多种风情于一体的特点。
美式风格主要特征:美式风格别墅的建筑体量普遍较大;美式别墅多木结构;由于气候的差别,美式别墅的坡屋顶较缓,有大挑檐伸出;美式别墅空间灵活适用、流动自然。
ART-DECO风格特点:
Art Deco建筑风格起源于1925年于巴黎举行的国际装饰艺术与现代工业博览会,它介于新古典主义和现代主义之间,是古典对称和现代简约的完美结合体。该风格趋于几何的挺拔竖向线条、强调对称、干净利落、大块渐成的风格,金字塔状的台阶式构图形成强烈的视觉感受和独特的韵律感。Art Deco建筑风格始终是城市豪宅的首选。
ArtDeco建筑风格特征:纵三段的立面构图,强调对称,营造一种古典秩序感;采用阶梯状层层跌落的造型处理;建筑立面用竖向窗带组织,纵向颜色深浅分明,整体轮廓高耸挺拨,形成建筑高贵内敛的艺术气质。
新古典风格特点:
新古典主义的设计风格其实就是经过改良的古典主义风格。一方面保留了材质、色彩的大致风格,仍然可以很强烈地感受传统的历史痕迹与浑厚的文化底蕴,同时又摒弃了过于复杂的机理和装饰,简化了线条。
新古典风格特征:讲究风格,在造型设计时不是仿古,也不是复古,而是追求神似;用现代材料和加工技术追求传统样式的大的轮廓特点;对历史样式用简化的手法;注重装饰效果; 白色、金色、黄色、暗红色是新古典风格中常见的主色调。
现代典雅风格特点:
现代典雅的风格,以简洁明快为主调,细部处理古典建筑形式,在突出现代感的同时,传承历史悠久的文化韵味。建筑风格庄重精美,通过运用传统美学法则来使现代的材料与结构产生规整、端庄、典雅的安定感。
现代典雅风格的特征:外装用材高档且富有质感,它吸取古典建筑传统构图手法,比例工整严谨,造型简练轻快,偶有花饰,但不拘于程式。
新中式风格特点:
新中式建筑通过现代材料和手法修改了传统建筑中的各个元素,并在此基础上进行必要的演化和抽象化,在整体风格上,仍然保留着中式住宅的神韵和精髓。空间结构上有意遵循了传统住宅的布局格式,根据各地特色吸收了当地的建筑色彩及建筑风格,能自成特色。
新中式风格特征:中式外观与室内空间的人性化、现代化的设计共同营造现代人的舒适生活;一层与二层的退台设计,增强了居住者的私密性,并增加了空间的多变性,富有情趣;将地下室作非主流生活空间,对空间合理利用;设置下沉庭院,保证地下空间的通风与采光。
二、不同风格主入口分析

西班牙风格
贝尚湾:贝尚湾位于北九亭,小区总建筑面积约50万平方米,容积率1.5,集小高层、联体别墅和主题商业区为一体。,以其独特的地中海建筑风格及区域内较高的社区品质,始终领跑区域单价。


西班牙风格
贝尚湾适用范围分析:
1 、中高档西班牙风格社区
2 、以小高层、高层住宅为主的社区
3 、人车混行社区
4 、入口进深较大、较宽阔的社区
西班牙风格
万科兰乔圣菲:万科兰乔圣菲别墅是典型的西班牙传教士风格独立别墅,建筑单体采用粘土筒瓦、彩色水泥抹灰墙面(STUCCO)、锻铁装饰栏杆、木质门为基本构筑材料,并运用大量的手工工艺而形成了融合自然的淳朴的建筑风格。小区占地约32公顷,共规划建造305幢独栋别墅,建筑面积9.3万平方米,容积率0.3。


万科兰乔圣菲
适用范围分析:
1 、高档西班牙风格社区
2 、以别墅、排屋为主的社区
3 、人车混行社区
4 、入口进深较大、较宽阔的社区
西班牙风格
东方帕堤欧:位于顾村中高档住宅板块核心区域,将西班牙异域风情运用于建筑风格。阳光、绿荫、草坪、水景、雕塑、人行步道、红陶筒瓦、STUCCO手工抹灰墙、铁艺、Patio庭院、高雅华贵的建筑群落,相互交融,令人仿佛置身于自然的西班牙花园之中


东方帕堤欧:
适用范围分析:
1 、中高档西班牙风格社区
2 、小高层、低层排屋混合社区
3 、人车混行社区
4 、入口临街的社区
英式风格
绿地逸湾:绿地逸湾,青浦首座英伦建筑风格社区,绿地集团打造,总建筑面积约11万m²,建有8幢水岸高层公寓和96栋双拼别墅,位处华新镇未来核心区域,大虹桥规划辐射圈旁。


绿地逸湾适用范围分析:
1 、中高档英式风格社区
2 、小高层、低层排屋混合社区
3 、人车混行社区
4 、入口进深较大的社区
英式风格
仁恒怡庭:仁恒怡庭建筑为英国多铎时期建筑风格,把欧洲小镇风情和上海海派浪漫的结合,地中海园林(下沉式花园)风格和欧洲经典建筑结合,所以仁恒怡庭欧洲小镇风情和上海海派浪漫的结合,让您置身其中仿佛到了欧洲某个小镇的感觉。


仁恒怡庭适用范围分析:
1 、高档英式风格社区
2 、低层排屋社区
3 、人车分行社区
4 、入口临街的社区
法式风格
绿地新南路壹号:位于莘闵别墅区中心,10万平综合商业体,24万平别墅社区,倡导以枫丹白露为原型的法式皇家宫廷别墅生活。社区整体人车分流、全地下车库,打造安全舒适的花园社区。户型创新舒展,超大附赠空间、全精装庭院、国际品牌装修、主次卫地暖配置,创新下沉式庭院,具有极高的居住舒适性和性价比。


绿地新南路壹号适用范围分析:
1 、高档法式风格社区
2 、低层排屋社区
3 、人车分流社区
4 、入口具有大体量景观社区
法式风格
万科锦源:万科锦源小区整体建筑风格为新法式风格,设计参照了著名的法国巴黎卢浮宫的设计,采用了恢弘大气的对称布局;基座、墙身及屋顶经典三段式布局;整体设计中以明快的现代式的线条感来处理基座拱券、墙身壁柱、屋顶雕刻檐口以及老虎窗等具有代表性的部位。细节处理运用了法式廊柱雕花线条,制作工艺精细考究,呈现出浪漫典雅风格,又不失现代社会的时代感。


万科锦源适用范围分析:
1 、高档法式风格社区
2 、多层洋房社区
3 、人车混行社区
4 、入口临街社区
美式风格
观庭:观庭别墅均为赖特草原式建筑风格,以联排别墅为主,兼有双拼与独栋。位于青浦徐泾国际别墅社区,周边交通便利。观庭社区呈东西狭长状,总用地面积24.55公顷,其中,总建设用地22.40公顷。项目的主入口设在基地东侧的联民路,入口处布置会所及入口广场。


观庭:适用范围分析:
1 、中高档美式风格社区
2 、低层排屋社区
3 、人车混行社区
4 、入口临街社区
新古典主义风格
绿地东上海:绿地东上海坐落于浦东康桥镇,是以小高层为主,新古典主义风格的优质建筑,凸显沉稳,高贵之气质,原生态景观河流横贯,绿化率达到50%,交通便捷。地处周康中心镇规划核心区域,项目以住宅为主,商业为辅,结合酒店、办公的建筑面积为61万平的大型综合社区。


绿地东上海:适用范围分析:
1 、中高档新古典主义风格社区
2 、高层公寓社区
3 、人车混行社区
4 、入口进深较大社区
Art-Deco风格
新里卢浮公馆:绿地新里卢浮公馆是绿地集团携城市第一住宅品牌“新里”献礼济南的第一号作品,以总建筑面积60万平米的海派社区,为济南钜献公馆生活的艺术。整体导入集欧洲、海派设计精华之大成的“ART-DECO”建筑艺术,构造新古典主义“欧式华美园艺乐章”。


新里卢浮公馆:适用范围分析:
1 、中高档Art-Deco风格社区
2 、小高层、低层排屋混合社区
3 、人车分行社区
4 、入口临街的社区
Art-Deco风格
九龙仓玺园:九龙仓玺园位于杨浦区新江湾城,占地约6万平方米,总建筑面积约10万平方米。项目充分吸收海派建筑的细腻与大气,倾力打造沪上高标准精装修公寓的豪华高尚社区,开创城市领袖精英的专属尊崇领地。九龙仓玺园建筑风格中西合璧,以中轴对称的皇家园林制序,统御工整典雅的宫廷公园形象。


九龙仓玺园适用范围分析:
1 、高档Art-Deco风格社区
2 、高档平层别墅社区
3 、人车分行社区
4 、入口大进深的社区
现代典雅风格
金地天御:高贵的现代典雅风格,与海派经典建筑具有一脉相承的品质感,又符合国际设计界“简约奢华”的发展方向.项目占地面积约8.3万平米,总建筑面积约10万平方米,容积率1.2,绿化率40%,创新产品平墅,社区三面环水。


金地天御:适用范围分析:
1 、高档现代典雅风格社区
2 、高档平层别墅社区
3 、人车分行社区
4 、入口临街的社区
三、居住小区主入口模板
西班牙风格
适用范围分析:
适用于中高档地中海风格社区;小区规模不大,以小高层、高层住宅为主的,人车混行社区;入口进深较大、两边有建筑物的社区。
建筑平面图

参考立面图


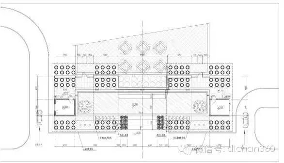
西班牙风格
建筑平面图

参考立面图


英式风格
适用范围分析:
适用于较高档英式风格社区;小区规模不大,以多层洋房和低层排屋为主的,人车分行社区;入口临街面较宽阔的社区。
建筑平面图

参考立面图



美式风格
适用范围分析:
适用于较高档美式风格社区;小区规模较大,以多层洋房和低层排屋为主的,人车混行社区;入口临街面较宽阔的社区。
建筑平面图

参考立面图



法式风格
适用范围分析:
适用于高档法式风格社区;小区规模较大,以多层洋房和低层排屋为主的,人车分行社区;入口临街面较宽阔的社区;强调主入口对称布局,以法式宫廷园林景观为主的社区。
建筑平面图

参考立面图



Art-Deco风格
适用范围分析:
适用于高档Art-Deco风格社区;小区规模较大,以高层Art-Deco艺术风格为主的,人车分行社区;强调主入口对称布局,以欧式园林景观为主的社区。
建筑平面图

参考立面图


---- 推广 ----

文章底部新增留言功能,欢迎踊跃留言评论
投稿.合作.推广 请+微信stonesoso
【石材研习社】您身边的免费石材课!
微信公众号:stone5A
【石材商城】全国首个石材在线交易微商城!
微信公众号:scsc365
点击“石材研习社”,进入中国石材微商城!
↓
↓
↓
↓
什么,装修还用自己的钱?!齐家装修分期,超低年利率3.55%起,最高可贷100万。立即申请享受优惠
