因为喜欢,所以专业,我是室内设计师李秀玲!欢迎大家跟我一起讨论家居设计、装修等问题。同一种户型不同的设计方案,从方案中即能知晓居者的生活品味。合肥绿城玫瑰园这个小区,飞墨已经做了好多套,不管是美式还是现代简约,每一套都有其独特的魅力。

01
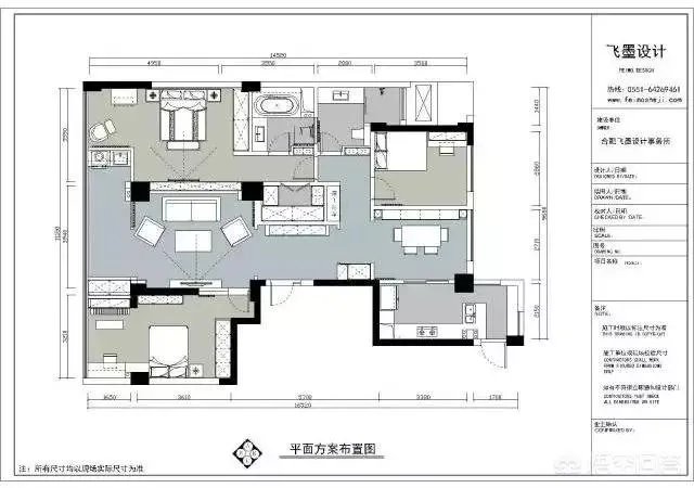
设计风格 | 美式乡村
项目面积 | 163m²
半包价格 | 15万
设计方案


大千世界,来来往往的过客太多,只有遇到不一样的才足以被铭记。绿城玫瑰园的新房我们已经做过太多,每一次遇到的业主都是那么不同,最后呈现的家也是与众不同的。



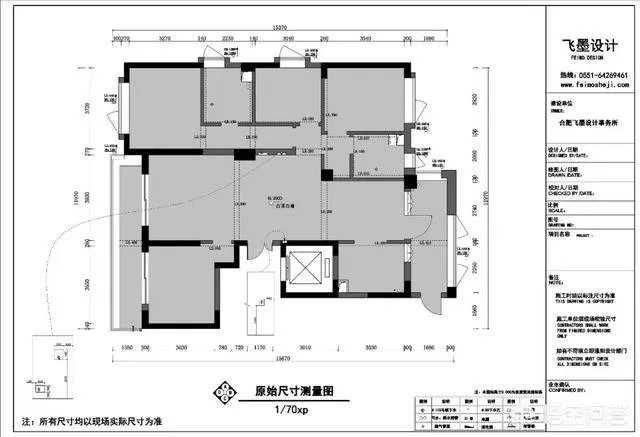
02
建筑面积 | 169平米
设计风格 | 美式
半包价格 | 21.8万
设计方案

生活是一种律动,须有光有影,有左有右,有晴有雨,滋味就含在这变而不猛的曲折里。设计亦是如此,可夸张但不缺实用,可浓郁但不缺低调,品位就蕴藏在星星散散的物件上。




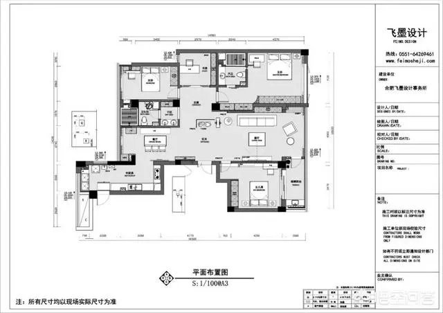
03
项目面积 | 180㎡
设计风格 | 美式
设计方案


1.把南阳台的一部分扩入次卧,增大次卧面积,同时增大了采光。
2.利用户型优势,主卧设计成套间,方便起居。
3.北阳台全部扩入室内,增大空间利用面积




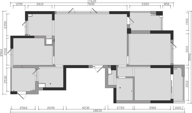
04
项目面积 |169m²
设计风格 |现代
设计方案


越是简单,越是能感受到空间纯粹的美感,一如此作中,我们利用“少即是多”的艺术手法,将居室呈现出现代前卫的感觉,在给人一种视觉冲击力的同时,又在空间留白处给人以想象空间。




05
项目面积 | 200㎡
设计风格 | 现代简约
设计方案


1.砸掉书房多余的墙体并改动书房和北次卧的门向,使书房更加规整且呈开放式,并做成3m长的书桌,方便亲子学习互动交流。
2.客卫做了干湿分离,隔绝如厕和淋浴水汽,同时增加隐私。
3.主卫采用双台盆设计,避免早上洗漱拥挤。
4.北阳台靠近厨房的位置,利用阳台柜体做了一个暗箱,形成一个储物间,供收纳使用。




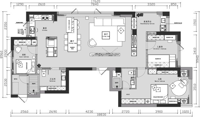
06
项目面积 | 200㎡
设计风格 | 现代简约
设计方案


①应业主的要求,拆掉轻墙体,把厨房改造成开放式。
②打通北阳台,利用隐形门隔开家政区和储物间。
③书房的门洞改到阳台进入,原始的门洞用来储物。
④利用承重墙体做了一个异形餐桌,打造社交餐厅。
⑤把相邻的次卧规划到主卧内,形成一个小套房。




07
项目面积 | 200㎡
设计风格 | 现代简约
设计方案


1.拆掉原始户型中的鸡肋储物间,使整个空间变得开阔许多。
2.南北阳台全部扩入室内,南边做休闲小角,北边延长餐厅空间。
3.主卧与主卫之间留了一条窥探缝,给空间更多的互动。




08
项目面积 | 149㎡
设计风格 | 现代简约
设计方案


①厨房形成环岛动线,周围补充水吧台,分散功能,将门设计成隐藏式,可收可用。
②南北次卧分别后退了一米左右,划分出家里的内过道,将所有卧室的门都藏在内过道里,既能保证家人的独立与隐私,又能达到美观的效果。
③主卧采用套房设计,拆掉轻体墙重新归置,让室内呈直线走动,动线最短。
④打造「厨房+餐厅+客厅+多动能区」的升级版LDK,满足业主平常与亲朋好友聚会的空间需求。



